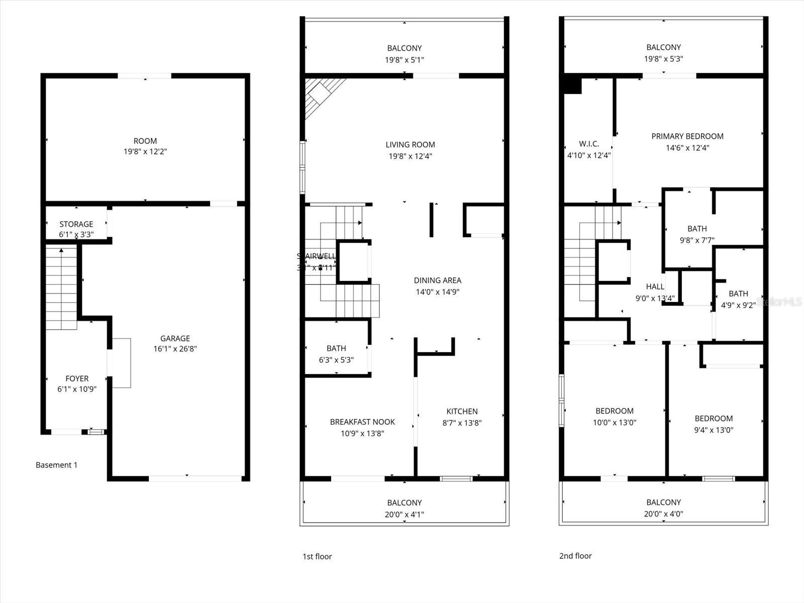
Virtual tour for 9170 Blind Pass Rd, St Pete Beach, FL 33706
Tampa Real Estate
Our Services are FREE to Buyers!
jennifer-cook-raul-aleman img-responsive

Virtual Tour

getinfo
An error occurred, please contact administrator or try again.

This listing is courtesy of Keller Williams St Pete Realty. Property Listing Data contained within this site is the property of Stellar MLS and is provided for consumers looking to purchase real estate. Any other use is prohibited. We are not responsible for errors and omissions on this web site. All information contained herein should be deemed reliable but not guaranteed, all representations are approximate, and individual verification is recommended.