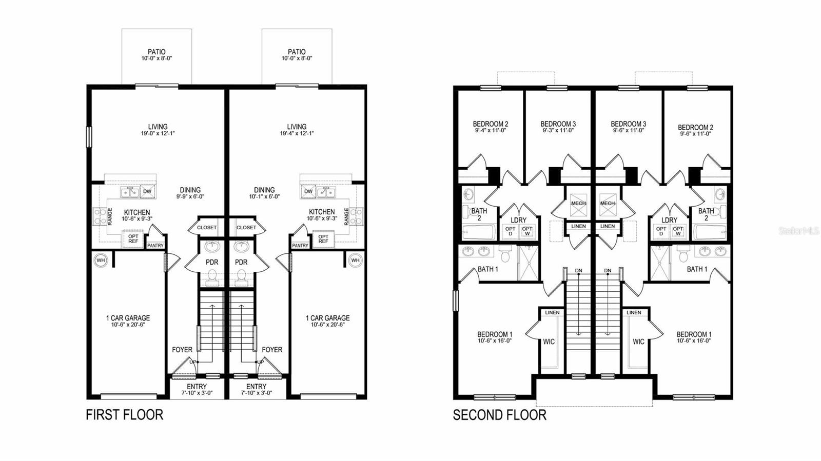
Virtual tour for 31280 Paper Birch St, Wesley Chapel, FL 33545
Tampa Real Estate
Our Services are FREE to Buyers!
jennifer-cook-raul-aleman img-responsive

Virtual Tour

getinfo
An error occurred, please contact administrator or try again.

This listing is courtesy of D R Horton Realty of Tampa Llc. Property Listing Data contained within this site is the property of Stellar MLS and is provided for consumers looking to purchase real estate. Any other use is prohibited. We are not responsible for errors and omissions on this web site. All information contained herein should be deemed reliable but not guaranteed, all representations are approximate, and individual verification is recommended.